ONTDEK CITYSIDE
OPEN & MODERN
CITYSIDE
Op een strategische locatie in het centrum van Amsterdam, aan de westelijke oever van de Amstel ligt een karakteristiek kantoorgebouw. Tekenend voor de skyline van de stad. Een pand met een industrieel verleden en een eigentijdse uitstraling.
Waar in de twintigste eeuw de autofabrikant Spyker en later de papierfabriek gevestigd waren, bevindt zich nu CitySide. In de jaren zestig ontworpen door de bekende architect Maaskant die onder andere het Amsterdamse Hilton Hotel heeft ontworpen. In 2019 volledig herontwikkeld naar een ontwerp van MVSA en voorzien van vele services en faciliteiten zoals functionele entree, bemande receptie en diverse dakterrassen.
De stijlvolle transparante gevels in combinatie met de verspringende verdiepingen geeft het gebouw een kenmerkende open sfeer. CitySide heeft een totale oppervlakte van 9.657 m2 v.v.o. waarvan 2.966 m2 v.v.o. beschikbaar van de 2e en 3e verdieping.

OPEN & MODERN
CITYSIDE
Op een strategische locatie in het centrum van Amsterdam, aan de westelijke oever van de Amstel ligt een karakteristiek kantoorgebouw. Tekenend voor de skyline van de stad. Een pand met een industrieel verleden en een eigentijdse uitstraling.
Waar in de twintigste eeuw de autofabrikant Spyker en later de papierfabriek gevestigd waren, bevindt zich nu CitySide. In de jaren zestig ontworpen door de bekende architect Maaskant die onder andere het Amsterdamse Hilton Hotel heeft ontworpen. In 2019 volledig herontwikkeld naar een ontwerp van MVSA en voorzien van vele services en faciliteiten zoals functionele entree, bemande receptie en diverse dakterrassen.
De stijlvolle transparante gevels in combinatie met de verspringende verdiepingen geeft het gebouw een kenmerkende open sfeer. CitySide heeft een totale oppervlakte van 9.657 m2 v.v.o. waarvan 2.966 m2 v.v.o. beschikbaar op de 2e en 3e verdieping.
KEY FACTS
KEY FACTS
Diverse (exclusieve)
dakterrassen met
fantastisch uitzicht
Grote flexibele (computer)vloeren
met een standaard vloer-tot-plafond
hoogte van 2,7 tot 3,4 meter
Stijlvolle en transparante
gevels met ramen van
vloer tot plafond
HR++ glas en automatische
buiten-zonwering aan de
zonbelaste gevels
Parkeernorm 1:135
op het parkeerterrein
achter het gebouw
Perfecte bereikbaarheid
met OV, auto en fiets
Gelegen aan de Amstel
Energielabel A en BREEAM
In-Use Excellent certificaat
Hoogwaardige klimaatinstallaties
die de mogelijkheid bieden voor
45 m3/h verse lucht per persoon
en een bezetting van 1:9
Warmte-koude opslag
installatie in combinatie met een
warmtepompinstallatie
LED verlichting met daglicht-
regeling aan de gevelzones
Douches op begane grond
Ruime entree met
marmeren vloer
Bemande receptie
Turn-key & casco
kantoorvloeren
Diverse (exclusieve)
dakterrassen met
fantastisch uitzicht
Grote flexibele (computer)vloeren
met een standaard vloer-tot-plafond
hoogte van 2,7 tot 3,4 meter
Stijlvolle en transparante
gevels met ramen van
vloer tot plafond
HR++ glas en automatische
buiten-zonwering aan de
zonbelaste gevels
Parkeernorm 1:135
op het parkeerterrein
achter het gebouw
Perfecte bereikbaarheid
met OV, auto en fiets
Gelegen aan de Amstel
Energielabel A en BREEAM
Very Good (renovatie)
Hoogwaardige klimaatinstallaties
die de mogelijkheid bieden voor
45 m3/h verse lucht per persoon
en een bezetting van 1:9
Warmte-koude opslag
installatie in combinatie met een
warmtepompinstallatie
LED verlichting met daglicht-
regeling aan de gevelzones
Douches op begane grond
Ruime entree met
marmeren vloer
Bemande receptie
Turn-key & casco kantoorvloeren
EEN GROENE WERELD
DUURZAAMHEID
Een van de meest opvallende kenmerken van CitySide is de duurzaamheid. Het is ontworpen volgens de hoogste duurzaamheidsnormen, heeft Energie Label A en een BREEAM In-Use Excellent certificaat.
Het gebouw maakt gebruik van duurzame energiebronnen, zoals zonnepanelen en een warmte-koudeopslagsysteem, automatische zonwering aan de zonbelaste gevels en is voorzien van energiezuinige installaties. Daarnaast heeft het gebouw een groen dak en wordt er gebruik gemaakt van regenwater voor de irrigatie van planten.

EEN GROENE WERELD
DUURZAAMHEID
Een van de meest opvallende kenmerken van CitySide is de duurzaamheid. Het is ontworpen volgens de hoogste duurzaamheidsnormen, heeft Energie Label A en een BREEAM In-Use Excellent certificaat.
Het gebouw maakt gebruik van duurzame energiebronnen, zoals zonnepanelen en een warmte-koudeopslagsysteem, automatische zonwering aan de zonbelaste gevels en is voorzien van energiezuinige installaties. Daarnaast heeft het gebouw een groen dak en wordt er gebruik gemaakt van regenwater voor de irrigatie van planten.
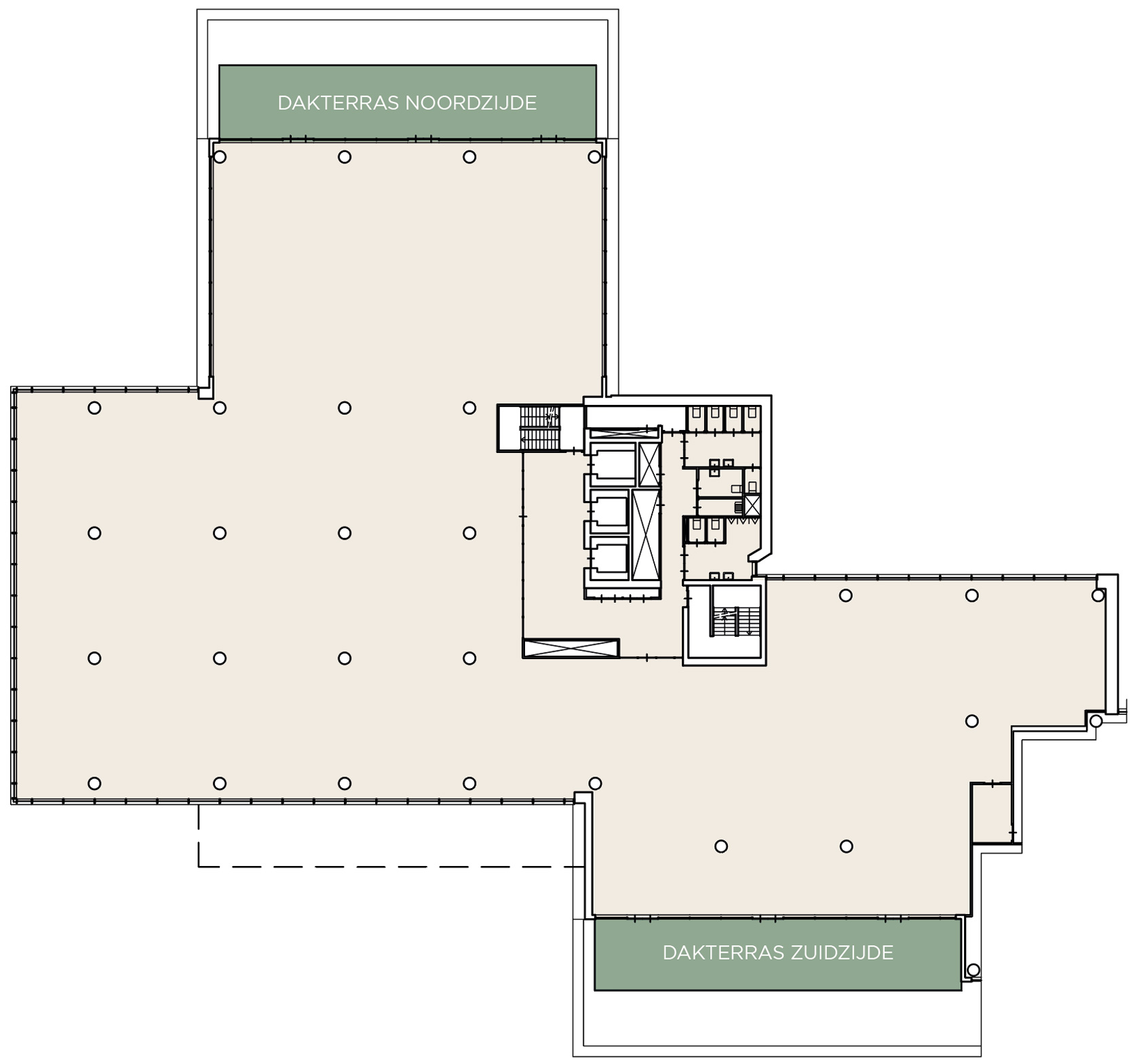
EEN PANORAMISCH UITZICHT
DAKTERRASSEN
De dakterrassen aan het Amsteldok bieden een adembenemend panoramisch uitzicht over de stad en de Amstel en vormen een indrukwekkend decor voor elke zakelijke gelegenheid. Deze terrassen zijn zorgvuldig ontworpen om esthetiek te combineren met functionaliteit, wat zorgt voor een productieve en plezierige ervaring voor bezoekers.
| Verdieping 3 noordzijde | 37 m2 |
| Verdieping 3 zuidzijde | 37 m2 |

EEN PANORAMISCH UITZICHT
DAKTERRASSEN
De dakterrassen aan het Amsteldok bieden een adembenemend panoramisch uitzicht over de stad en de Amstel en vormen een indrukwekkend decor voor elke zakelijke gelegenheid. Deze terrassen zijn zorgvuldig ontworpen om esthetiek te combineren met functionaliteit, wat zorgt voor een productieve en plezierige ervaring voor bezoekers.
| Verdieping 3 noordzijde | 37 m2 |
| Verdieping 3 zuidzijde | 37 m2 |


OMGEVING
AAN DE AMSTEL
Het moderne, strakke ontwerp laat CitySide uitblinken in de omgeving. Direct aan de Amstel, in de nabijheid van Zuidas en op slechts enkele minuten van het bruisende centrum van Amsterdam.
CitySide is gelegen in de Rijnbuurt. Brede straten met veel bomen en parken maken dit een aantrekkelijke omgeving. Bovendien zijn er veel voorzieningen in de buurt zoals lunchrooms, koffiebars en supermarkten. Het centrum van Amsterdam, maar ook de bruisende Rijnstraat en restaurants aan de overkant van de Amstel zijn lopend en fietsend uitstekend te bereiken.
BEREIKBAARHEID
Een van de belangrijkste voordelen van werken in de Rijnbuurt is de bereikbaarheid. CitySide ligt op slechts enkele minuten van de Ringweg-Zuid en de A10, waardoor het gemakkelijk te bereiken is met de auto. Tevens is er een ruime parkeergarage op locatie aanwezig.
Ook met het openbaar vervoer is CitySide goed bereikbaar, met meerdere tram- en buslijnen om de hoek. Het Amstel Station is 5 loopminuten verwijderd van CitySide waar tevens treinen en metro’s vertrekken in alle richtingen van de stad en daarbuiten.
| AUTO | OV | |
|---|---|---|
| SCHIPHOL AIRPORT | 15 MIN. | 40 MIN. |
| UTRECHT | 40 MIN. | 30 MIN |
| DEN HAAG | 55 MIN. | 60 MIN |
| ROTTERDAM | 70 MIN. | 70 MIN |



OMGEVING
AAN DE AMSTEL
Het moderne, strakke ontwerp laat CitySide uitblinken in de omgeving. Direct aan de Amstel, in de nabijheid van Zuidas en op slechts enkele minuten van het bruisende centrum van Amsterdam.
CitySide is gelegen in de Rijnbuurt. Brede straten met veel bomen en parken maken dit een aantrekkelijke omgeving. Bovendien zijn er veel voorzieningen in de buurt zoals lunchrooms, koffiebars en supermarkten. Het centrum van Amsterdam, maar ook de bruisende Rijnstraat en restaurants aan de overkant van de Amstel zijn lopend en fietsend uitstekend te bereiken.
BEREIKBAARHEID
Een van de belangrijkste voordelen van werken in de Rijnbuurt is de bereikbaarheid. CitySide ligt op slechts enkele minuten van de Ringweg-Zuid en de A10, waardoor het gemakkelijk te bereiken is met de auto. Tevens is er een ruime parkeergarage op locatie aanwezig.
Ook met het openbaar vervoer is CitySide goed bereikbaar, met meerdere tram- en buslijnen om de hoek. Het Amstel Station is 5 loopminuten verwijderd van CitySide waar tevens treinen en metro’s vertrekken in alle richtingen van de stad en daarbuiten.
| AUTO | OV | |
|---|---|---|
| SCHIPHOL AIRPORT | 15 MIN. | 40 MIN. |
| UTRECHT | 40 MIN. | 30 MIN |
| DEN HAAG | 55 MIN. | 60 MIN |
| ROTTERDAM | 70 MIN. | 70 MIN |





BESCHIKBAARHEID
STIJLVOL EN TRANSPARANT
Op de 2e,3e en 5e verdieping is ca. 3.493 m2 v.v.o. beschikbaar.
De stijlvolle transparante gevel en de grote, flexibel in te richten kantoorvloeren creëren een zeer ruimtelijke gevoel. Er is veel natuurlijke lichtinval en vanaf de vele dakterrassen zijn uitzichten fantastisch.
BESCHIKBAARHEID
STIJLVOL EN TRANSPARANT
Op de 2e, 3e en 5e verdieping is ca. 3.493 m2 v.v.o. beschikbaar.
De stijlvolle transparante gevel en de grote, flexibel in te richten kantoorvloeren creëren een zeer ruimtelijke gevoel. Er is veel natuurlijke lichtinval en vanaf de vele dakterrassen zijn uitzichten fantastisch.


Deelverhuur mogelijk vanaf ca. 550 per m² v.v.o.
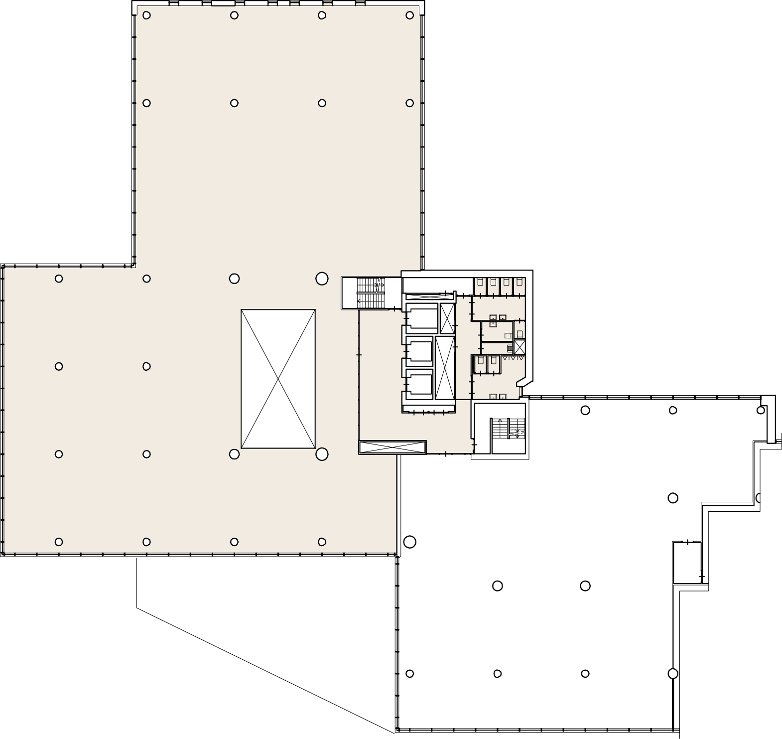
2e VERDIEPING
1.279 m2 v.v.o. | € 395,- per m² v.v.o. | Max. 142 personen


3e VERDIEPING
1.687 m2 v.v.o. | € 415,- per m² v.v.o. | Max. 162 personen


5e VERDIEPING
527 m2 v.v.o. | € 450,- per m² v.v.o. | Beschikbaar per 1 juli 2026


INDELINGSVARIANT VERDIEPING 3
OPEN SPACE TEST-FIT
In deze ‘open space’ test-fit is ruimte voor 56 flexibelle werkplekken, 5 vergaderruimtes, 6 meeting boxes, 1 congresruimte, diverse loungeplekken en 2 ruime dakterrassen.
INDELINGSVARIANT VERDIEPING 3
OPEN SPACE TEST-FIT
In deze ‘open space’ test-fit is ruimte voor 56 flexibelle werkplekken, 5 vergaderruimtes, 6 meeting boxes, 1 congresruimte, diverse loungeplekken en 2 ruime dakterrassen.




